Caratteristiche
- Riferimento:  273CP
- Prezzo:  € 150.000
- Superficie: 22 mq
- Località:  Camaiore - Lido Di Camaiore
- Classe Energetica:  G
- Contratto:  Vendita
- Tipologia:  Negozio
- Numero Vani:  2.0
- Piano:  N.D.
- Riscaldamento: Assente
- Aria Condizionata: Sì
Descrizione
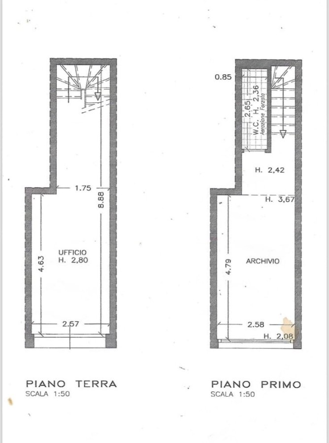
A soli 250 metri dalla spiaggia di Lido di Camaiore, in una zona piacevole e ben frequentata, proponiamo un fondo commerciale C1 di 22 m², distribuito su due livelli e perfettamente sfruttabile per molteplici attività.
L’immobile si presenta in buonissime condizioni, con una disposizione funzionale: al piano terra un ambiente luminoso e accogliente ideale come area vendita, esposizione o studio; al piano superiore un secondo spazio utilizzabile come magazzino, ufficio o area operativa, completo di bagno finestrato.
La posizione strategica, vicina al mare e inserita in un contesto curato, rende questo fondo estremamente versatile: perfetto per chi desidera avviare un negozio, uno showroom, un piccolo studio professionale, un laboratorio creativo o un’attività stagionale.
Un’opportunità rara in una delle zone più ambite, pronta per essere utilizzata senza interventi.
