Caratteristiche
- Riferimento:  280CP
- Prezzo:  € 480.000
- Numero Camere:  2
- Numero Bagni:  : 2
- Superficie: 137 mq
- Località:  Camaiore - Capezzano Pianore
- Giardino: Privato
- Classe Energetica:  G
- Contratto:  Vendita
- Tipologia:  Villa Bifamiliare
- Numero Vani:  6.0
- Posto Auto:  Posto Auto
- Piano:  N.D.
- Riscaldamento: Autonomo
- Aria Condizionata: Sì
- Distanza dal centro: 2 m
- Stato: Da Rivedere
Descrizione
Proponiamo in vendita una villetta bifamiliare alle spalle di Lido di Camaiore, in zona tranquilla e di campagna.
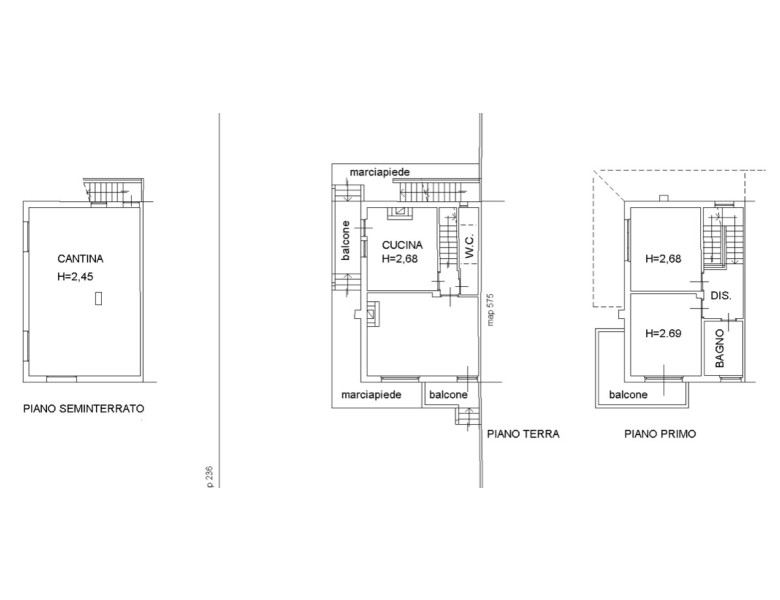
L'immobile è suddiviso principalmente su tre livelli:
al piano seminterrato un vano di circa 50mq,
al piano terra una zona giorno, una cucina con sala pranzo e un bagno di servizio.
Al piano primo due camere matrimoniali, un bagno e un disimpegno.
Sia al piano terra che al piano primo troviamo balconi comodi e spaziosi.
La casa è libera su tre lati, circondata da un ampio parco di circa 3500mq, nel quale ovviamente vi sono posti auto.
La proprietà necessita di qualche lavoro di ristrutturazione ed ha un ottimo potenziale.
